CONCEPT

コンセプト

生活利便性に優れた相模原中心エリア
建築条件付き土地4区画+新築戸建1棟

相模原市の中心エリアに誕生する全5区画の分譲地。
JR相模線「上溝」駅まで徒歩22分、通勤・通学に便利な立地です。
学校や医療施設、スーパーなどが徒歩圏内に揃い、日常生活の利便性も抜群。
子育て世代にも安心の住環境です。

No.1区画には新築戸建をご用意。
3LDK+パントリーの間取りに加え、シューズクローゼットや洗面室と脱衣室を分けた設計で、家事や身支度が快適に。
LDKは19帖とゆとりがあり、家族が集まる時間を明るく広々と演出します。

さらに本物件は長期優良住宅かつZEH基準に適合。
光熱費負担を抑え、環境にも家計にもやさしい住まいです。
※詳細はお問い合わせください


<TOMOLI SMART design>
TOMOLI SMART design は、建物本体工事費・設計費用等を含めた
わかりやすいオールインワン価格※でご提供する住宅です。
設計士が住みやすさや動線を考慮して企画したプランに、
お好みに合わせてカラーコーディネートをお選びいただけます。
建売住宅に近い価格帯で、自分らしい住まいづくりをご提案します。
※一部諸経費・オプションを除く

さらに自由度の高い住まいをご希望の場合は、
注文住宅「TOMOLI SELECT design」もご用意しています。


当物件は【先着順販売】です。気になる方はお早めにご相談ください。

■ 見学予約・資料請求はフォームから24時間受付中
■ お電話でのお問い合わせも承ります → 「0120-343-650」(通話料無料)
※当日のご見学にも対応可能です。

LOCATION&
ACCESS

ロケーション/アクセス

  • 中央小学校

    中央小学校(徒歩8分/580m)

  • 中央中学校

    中央中学校(徒歩9分/710m)

  • 千代田保育園

    千代田保育園(徒歩11分/840m)

  • ヨークマート富士見店

    ヨークマート富士見店(徒歩5分/350m)

  • セレオ相模原

    セレオ相模原
    (徒歩28分/2,200m)

  • ノジマ相模原本店

    ノジマ相模原本店
    (徒歩15分/1,200m)

  • 横山公園

    横山公園
    (徒歩17分/1,300m)

  • 業務スーパー相模原店

    業務スーパー相模原店
    (徒歩14分/1,100m)

  • 相模原市中央区役所

    相模原市中央区役所
    (徒歩9分/720m)

この物件に関するお問い合わせはこちら

物件のお問い合わせはこちら

0120-343-650

【受付時間】9:00~18:00(水曜定休)

【TOMOLI 千代田1丁目(5区画)】物件・全体概要

  • 物件所在地

    神奈川県相模原市中央区千代田1-8-17

  • 交通

    相模線 上溝駅 1700m 徒歩22分
    横浜線 矢部駅 1900m 徒歩24分

  • 総区画数

    全5区画 ※内、戸建分譲1区画

  • 販売区画数

    5区画

  • 土地面積

    116.58㎡(35.26坪)~138.56㎡(41.91坪)

  • 建物面積

    97.7㎡(29.55坪)

  • 価格

    2,460万円(税込)~4,690万円(税込)

  • 間取り

    3LDK

  • 建ぺい率

    60%

  • 容積率

    200%

  • 小学校校区

    中央小学校

  • 中学校校区

    中央中学校

  • 上水道

    公営水道

  • 下水道

    本下水

  • 情報更新日

    2026年2月9日

  • 次回情報更新日

    2026年2月23日

【TOMOLI 千代田1丁目(5区画)】No.1

土地面積:137.43㎡(41.57坪) 建物面積:97.7㎡(29.55坪) 状況:分譲中

4,690 (税込) 万円

  • 外観完成予想図

    外観完成予想図

    濃淡のある外壁が印象的な外観。区画内の奥まった立地で落ち着きある暮らしを実現。駐車2台分&宅配ボックス付き。※駐車台数は車種によります

  • LDK完成予想図

    LDK完成予想図

    南北両面から光が差し込む明るいLDK。家具を置いても動線が確保しやすく、くつろぎの時間を心地よく彩ります。

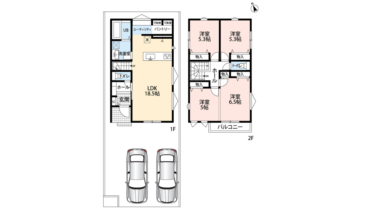
  • 間取り図

    間取り図

  • 省エネ性能ラベル

    省エネ性能ラベル

    断熱性能等級5・エネルギー消費性能★6取得!(再エネ設備あり)
    ZEH水準クリアの省エネ住宅で、夏も冬も快適に過ごせます。

  • 現地写真

    現地写真

OVERVIEW

【No.1】区画概要

  • 基本情報

    種別

    一戸建て

    種目

    新築一戸建住宅

    物件ステータス

    分譲中

    公開

    一般公開

    販売スケジュール

    即日

    物件名

    No.1

    間取り

    3LDK

    物件所在地

    神奈川県相模原市中央区千代田1-8-17

    交通

    相模線 上溝駅 1700m 徒歩22分
    横浜線 矢部駅 1900m 徒歩24分

    小学校校区

    中央小学校

    中学校校区

    中央中学校

  • 土地・建物情報

    土地面積

    137.43㎡(41.57坪)

    建物面積

    97.7㎡(29.55坪)

    私道面積

    -

    駐車場

    カースペース

    建物構造

    地上2階建て

    建物構造 主要

    木造

    建物構造 一部

    築年月

    -

    バルコニー

    -

    土地権利

    所有権

    都市計画

    市街化区域

    地目

    宅地

    地勢

    -

    建ぺい率

    60%

    容積率

    200%

    用途地域

    第一種住居地域

    現況

    未完成

    角地

    一方道路

    接道状況

    【前面道路①】 南西 道路幅:6m

    引渡し

    相談

    引渡し条件

    -

    リフォーム 外装

    リフォーム 内装

    上水道

    公営水道

    下水道

    本下水

    ガス・オール電化

    オール電化

    セットバック

    不要

    私道負担

    地役権

    備考

    ■土地面積:路地状部分約48㎡含
    ■建物面積:1F非開放性部分0.559㎡含、別途2Fバルコニー非開放性部分1.092㎡有
    ■完成・引渡予定/契約後5か月後 ※契約後の着工となります。

    ※図面と現況が異なる場合は現況優先とします
    ※パース画像は実際とは異なる場合がございます。家具はイメージです。
    ※駐車台数は車種によります。

    セールスポイント

    -

    取引態様

    売主

    建築確認番号

    第KBI-SGM25-10-3293号(令和7年9月19日)

  • 価格

    価格

    4,690万円

    価格補足

    -

    最多価格帯

    -

    保証金

    保証金

    その他諸費用

    -

    月々支払

    価格未定

    月々支払備考

    -

  • 特徴・設備

    設備

    温水洗浄便座・トイレ2ヶ所・追焚機能・浴室乾燥機・システムキッチン・食器洗浄乾燥機・床下収納・洗髪洗面化粧台・照明器具・電気・上水道・下水道・複層ガラス・モニタ付インターホン・駐車場2台分

    特徴

    日当り良好・オール電化

    物件の性能

    長期優良住宅認定通知書・BELS/省エネ基準適合認定書あり

    建物検査
    (インスペクション)

    -

    住宅履歴

    -

    立地・土地特徴

    地盤調査済・南側道路面す・閑静な住宅地・前道6m以上・区画整理地内

    駅利便性

    2沿線以上利用可 

    住戸・階数

    2階建

    陽当り・採光・通風

    南向き・陽当り良好・南西向き

    間取り

    LDK18畳以上

    室内設備・仕様

    全居室フローリング

    収納

    全居室収納・床下収納・シューズインクローク

    キッチン・関連設備

    システムキッチン・対面式キッチン・パントリー(食器・食品の収納庫)・食器洗乾燥機

    浴室

    浴室乾燥機・浴室1坪以上

    トイレ・洗面関連設備

    シャワー付洗面化粧台・トイレ2ヶ所・温水洗浄便座・節水型トイレ・高機能トイレ

    バルコニー・テラス

    南面バルコニー 

    -

    エコ関連

    省エネルギー対策・太陽光発電システム・高気密高断熱住宅・省エネ給湯器・複層ガラス・全居室複層ガラスか複層サッシ・オール電化

    テレビ・通信

    -

    駐車・駐輪

    駐車2台可

    管理・セキュリティ

    TVモニタ付インターホン

    リフォーム
    リノベーション

    -

    周辺環境

    スーパー 徒歩10分以内・総合病院 徒歩10分以内・小学校 徒歩10分以内

    眺望・自然環境

    -

    費用・引き渡し条件

    -

    その他

    屋上

  • 制限事項

    法令上の制限

    準防火地域

    その他制限事項

    -

情報更新日:2026年2月9日 / 次回情報更新日:2026年2月23日

【TOMOLI 千代田1丁目(5区画)】No.2

土地面積:138.56㎡(41.91坪) 状況:分譲中

2,460 (税込) 万円

  • 現地写真

    現地写真

    サーティーフォーの家が建てられる建築条件付き土地です。
    詳細はお気軽にお問い合わせください。

  • 区画図

    区画図

  • 【SELECT design(グランフォルテ)建物プラン例外観イメージ】

    【SELECT design(グランフォルテ)建物プラン例外観イメージ】

    参考プラン例 / 建物面積:125.77㎡ 
    直線美と素材感が際立つ、上質な外観デザイン。

  • 【SELECT design(グランフォルテ)建物プラン例LDKイメージ】

    【SELECT design(グランフォルテ)建物プラン例LDKイメージ】

    参考プラン例 / 建物面積105.08㎡
    吹き抜けと階段がつくる、開放感あふれる上質なLDK空間。

  • 【SELECT design(グランフォルテ)建物プラン例間取り図】

    【SELECT design(グランフォルテ)建物プラン例間取り図】

    参考プラン例 / 建物面積:105.08㎡
    LDKを住まいの中心に据え、空間のつながりと上質な住み心地を追求したプラン。

GALLERY

ギャラリー

OVERVIEW

【No.2】区画概要

  • 基本情報

    種別

    土地

    種目

    売地

    物件ステータス

    分譲中

    公開

    一般公開

    販売スケジュール

    即日

    物件名

    No.2

    間取り

    -

    物件所在地

    神奈川県相模原市中央区千代田1-8-17

    交通

    相模線 上溝駅 1700m 徒歩22分
    横浜線 矢部駅 1900m 徒歩24分

    小学校校区

    中央小学校

    中学校校区

    中央中学校

  • 土地・建物情報

    土地面積

    138.56㎡(41.91坪)

    建物面積

    -

    私道面積

    -

    駐車場

    未選択

    建物構造

    -

    建物構造 主要

    その他

    建物構造 一部

    築年月

    -

    バルコニー

    -

    土地権利

    所有権

    都市計画

    市街化区域

    地目

    宅地

    地勢

    -

    建ぺい率

    60%

    容積率

    200%

    用途地域

    第一種住居地域

    現況

    -

    角地

    一方道路

    接道状況

    【前面道路①】 南西 道路幅:6m

    引渡し

    相談

    引渡し条件

    -

    リフォーム 外装

    リフォーム 内装

    上水道

    公営水道

    下水道

    本下水

    ガス・オール電化

    都市ガス

    セットバック

    不要

    私道負担

    地役権

    備考

    ■現況/更地
    ■土地面積:路地状部分約47㎡含
    ■図面と現況が異なる場合は現況優先とします。

    ※この土地は、土地売買契約後3ヵ月以内に当社と建物の建築請負契約を締結することを条件に販売します。
    この期間内に建築請負契約を締結されなかった場合は、土地売買契約は白紙となり、受領した手付金等の土地代金は全てお返しします。

    セールスポイント

    -

    取引態様

    売主

    建築確認番号

    -

  • 価格

    価格

    2,460万円

    価格補足

    -

    最多価格帯

    -

    保証金

    保証金

    その他諸費用

    -

    月々支払

    価格未定

    月々支払備考

    -

  • 特徴・設備

    設備

    都市ガス・上水道・下水道

    特徴

    -

    物件の性能

    -

    建物検査
    (インスペクション)

    -

    住宅履歴

    -

    立地・土地特徴

    南側道路面す・閑静な住宅地・前道6m以上・区画整理地内

    駅利便性

    2沿線以上利用可 

    住戸・階数

    -

    陽当り・採光・通風

    -

    間取り

    -

    室内設備・仕様

    -

    収納

    -

    キッチン・関連設備

    -

    浴室

    -

    トイレ・洗面関連設備

    -

    バルコニー・テラス

    -

    -

    エコ関連

    -

    テレビ・通信

    -

    駐車・駐輪

    -

    管理・セキュリティ

    -

    リフォーム
    リノベーション

    -

    周辺環境

    スーパー 徒歩10分以内・総合病院 徒歩10分以内・小学校 徒歩10分以内

    眺望・自然環境

    -

    費用・引き渡し条件

    -

    その他

    -

  • 制限事項

    法令上の制限

    準防火地域

    その他制限事項

    -

情報更新日:2026年2月9日 / 次回情報更新日:2026年2月23日

【TOMOLI 千代田1丁目(5区画)】No.3

土地面積:117.6㎡(35.57坪) 状況:分譲中

2,960 (税込) 万円

  • 現地写真

    現地写真

    サーティーフォーの家が建てられる建築条件付き土地です。
    詳細はお気軽にお問い合わせください。

  • 区画図

    区画図

  • 【SELECT design(グランフォルテ)建物プラン例外観イメージ】

    【SELECT design(グランフォルテ)建物プラン例外観イメージ】

    参考プラン例 / 建物面積:199.99㎡
    やわらかな光を受け止め、表情豊かな素材感が際立つ外観デザイン。

  • 【SELECT design(グランフォルテ)建物プラン例LDKイメージ】

    【SELECT design(グランフォルテ)建物プラン例LDKイメージ】

    参考プラン例 / 建物面積177.36㎡
    やさしい光と素材感が調和する、落ち着きと上質さを備えたLDK空間。

  • 【SELECT design(グランフォルテ)建物プラン例間取り図】

    【SELECT design(グランフォルテ)建物プラン例間取り図】

    参考プラン例 / 建物面積:177.36㎡
    空間の余白まで丁寧に設計し、住まい全体の完成度を高めたプラン。
    ※屋上はオプションとなります

GALLERY

ギャラリー

OVERVIEW

【No.3】区画概要

  • 基本情報

    種別

    土地

    種目

    売地

    物件ステータス

    分譲中

    公開

    一般公開

    販売スケジュール

    即日

    物件名

    No.3

    間取り

    -

    物件所在地

    神奈川県相模原市中央区千代田1-8-17

    交通

    相模線 上溝駅 1700m 徒歩22分
    横浜線 矢部駅 1900m 徒歩24分

    小学校校区

    中央小学校

    中学校校区

    中央中学校

  • 土地・建物情報

    土地面積

    117.6㎡(35.57坪)

    建物面積

    -

    私道面積

    -

    駐車場

    未選択

    建物構造

    -

    建物構造 主要

    その他

    建物構造 一部

    築年月

    -

    バルコニー

    -

    土地権利

    所有権

    都市計画

    市街化区域

    地目

    宅地

    地勢

    -

    建ぺい率

    60%

    容積率

    200%

    用途地域

    第一種住居地域

    現況

    -

    角地

    一方道路

    接道状況

    【前面道路①】 南西 道路幅:6m

    引渡し

    相談

    引渡し条件

    -

    リフォーム 外装

    リフォーム 内装

    上水道

    公営水道

    下水道

    本下水

    ガス・オール電化

    都市ガス

    セットバック

    不要

    私道負担

    地役権

    備考

    ■現況/更地
    ■図面と現況が異なる場合は現況優先とします。

    ※この土地は、土地売買契約後3ヵ月以内に当社と建物の建築請負契約を締結することを条件に販売します。
    この期間内に建築請負契約を締結されなかった場合は、土地売買契約は白紙となり、受領した手付金等の土地代金は全てお返しします。

    セールスポイント

    -

    取引態様

    売主

    建築確認番号

    -

  • 価格

    価格

    2,960万円

    価格補足

    -

    最多価格帯

    -

    保証金

    保証金

    その他諸費用

    -

    月々支払

    価格未定

    月々支払備考

    -

  • 特徴・設備

    設備

    都市ガス・上水道・下水道

    特徴

    日当り良好

    物件の性能

    -

    建物検査
    (インスペクション)

    -

    住宅履歴

    -

    立地・土地特徴

    南側道路面す・閑静な住宅地・前道6m以上・区画整理地内

    駅利便性

    2沿線以上利用可 

    住戸・階数

    -

    陽当り・採光・通風

    陽当り良好

    間取り

    -

    室内設備・仕様

    -

    収納

    -

    キッチン・関連設備

    -

    浴室

    -

    トイレ・洗面関連設備

    -

    バルコニー・テラス

    -

    -

    エコ関連

    -

    テレビ・通信

    -

    駐車・駐輪

    -

    管理・セキュリティ

    -

    リフォーム
    リノベーション

    -

    周辺環境

    スーパー 徒歩10分以内・総合病院 徒歩10分以内・小学校 徒歩10分以内

    眺望・自然環境

    -

    費用・引き渡し条件

    -

    その他

    -

  • 制限事項

    法令上の制限

    準防火地域

    その他制限事項

    -

情報更新日:2026年2月9日 / 次回情報更新日:2026年2月23日

【TOMOLI 千代田1丁目(5区画)】No.4(SMART design対応)

土地面積:116.58㎡(35.26坪) 状況:分譲中

2,860 (税込) 万円

  • SMART design 外観完成イメージ

    SMART design 外観完成イメージ

    土地価格2,860万円+建物参考価格2,070万円=販売総額4,930万円(税込)
    ※建物は請負契約・契約後着工
    外観デザインやカラーは一例で、変更が可能です。

  • SMART design LDK完成イメージ

    SMART design LDK完成イメージ

    明るく開放的なLDK。キッチン裏には便利なカウンターとパントリーを備え、家事動線と収納力を高めた使い勝手の良いプランです。

  • SMART design 間取り図

    SMART design 間取り図

    建物プラン / 建物面積:96.88㎡
    3LDK+収納+2台駐車可能の暮らしに寄り添うプラン。
    ※本プランはSMARTdesignの標準プランです。

  • 現地写真/区画全体

    現地写真/区画全体

  • 区画図

    区画図

GALLERY

ギャラリー

OVERVIEW

【No.4(SMART design対応)】区画概要

  • 基本情報

    種別

    土地

    種目

    売地

    物件ステータス

    分譲中

    公開

    一般公開

    販売スケジュール

    即日

    物件名

    No.4(SMART design対応)

    間取り

    -

    物件所在地

    神奈川県相模原市中央区千代田1-8-17

    交通

    相模線 上溝駅 1700m 徒歩22分
    横浜線 矢部駅 1900m 徒歩24分

    小学校校区

    中央小学校

    中学校校区

    中央中学校

  • 土地・建物情報

    土地面積

    116.58㎡(35.26坪)

    建物面積

    -

    私道面積

    -

    駐車場

    未選択

    建物構造

    -

    建物構造 主要

    その他

    建物構造 一部

    築年月

    -

    バルコニー

    -

    土地権利

    所有権

    都市計画

    市街化区域

    地目

    宅地

    地勢

    -

    建ぺい率

    60%

    容積率

    200%

    用途地域

    第一種住居地域

    現況

    -

    角地

    一方道路

    接道状況

    【前面道路①】 南西 道路幅:6m

    引渡し

    相談

    引渡し条件

    -

    リフォーム 外装

    リフォーム 内装

    上水道

    公営水道

    下水道

    本下水

    ガス・オール電化

    都市ガス

    セットバック

    不要

    私道負担

    地役権

    備考

    ■図面と現況が異なる場合は現況優先とします。

    ※この土地は、土地売買契約後3ヵ月以内に当社と建物の建築請負契約を締結することを条件に販売します。
    この期間内に建築請負契約を締結されなかった場合は、土地売買契約は白紙となり、受領した手付金等の土地代金は全てお返しします。

    ※SMARTdesignは当社がご提案する標準プランです。SMARTdesignのほか、建物プランを自由に設計することも可能です。
    掲載の建物はSMARTdesignに基づく完成イメージで、仕様・外壁カラー・外構等は一部変更となる場合があり、内容により追加工事費が発生する場合があります。

    セールスポイント

    -

    取引態様

    売主

    建築確認番号

    -

  • 価格

    価格

    2,860万円

    価格補足

    -

    最多価格帯

    -

    保証金

    保証金

    その他諸費用

    -

    月々支払

    価格未定

    月々支払備考

    -

  • 特徴・設備

    設備

    都市ガス・上水道・下水道

    特徴

    日当り良好

    物件の性能

    -

    建物検査
    (インスペクション)

    -

    住宅履歴

    -

    立地・土地特徴

    南側道路面す・閑静な住宅地・前道6m以上・区画整理地内

    駅利便性

    2沿線以上利用可 

    住戸・階数

    -

    陽当り・採光・通風

    陽当り良好

    間取り

    -

    室内設備・仕様

    -

    収納

    -

    キッチン・関連設備

    -

    浴室

    -

    トイレ・洗面関連設備

    -

    バルコニー・テラス

    -

    -

    エコ関連

    -

    テレビ・通信

    -

    駐車・駐輪

    -

    管理・セキュリティ

    -

    リフォーム
    リノベーション

    -

    周辺環境

    スーパー 徒歩10分以内・総合病院 徒歩10分以内・小学校 徒歩10分以内

    眺望・自然環境

    -

    費用・引き渡し条件

    -

    その他

    -

  • 制限事項

    法令上の制限

    準防火地域

    その他制限事項

    -

情報更新日:2026年2月9日 / 次回情報更新日:2026年2月23日

【TOMOLI 千代田1丁目(5区画)】No.5

土地面積:118.69㎡(35.90坪) 状況:分譲中

3,060 (税込) 万円

  • 現地写真

    現地写真

    サーティーフォーの家が建てられる建築条件付き土地です。
    詳細はお気軽にお問い合わせください。

  • 区画図

    区画図

  • 【SELECT design(グランフォルテ)建物プラン例外観イメージ】

    【SELECT design(グランフォルテ)建物プラン例外観イメージ】

    参考プラン例 / 建物面積:125.77㎡ 
    直線美と素材感が際立つ、上質な外観デザイン。

  • 【SELECT design(グランフォルテ)建物プラン例LDKイメージ】

    【SELECT design(グランフォルテ)建物プラン例LDKイメージ】

    参考プラン例 / 建物面積177.36㎡
    やさしい光と素材感が調和する、落ち着きと上質さを備えたLDK空間。

  • 【SELECT design(グランフォルテ)建物プラン例間取り図】

    【SELECT design(グランフォルテ)建物プラン例間取り図】

    参考プラン例 / 建物面積:177.36㎡
    空間の余白まで丁寧に設計し、住まい全体の完成度を高めたプラン。
    ※屋上はオプションとなります

GALLERY

ギャラリー

OVERVIEW

【No.5】区画概要

  • 基本情報

    種別

    土地

    種目

    売地

    物件ステータス

    分譲中

    公開

    一般公開

    販売スケジュール

    即日

    物件名

    No.5

    間取り

    -

    物件所在地

    神奈川県相模原市中央区千代田1-8-17

    交通

    相模線 上溝駅 1700m 徒歩22分
    横浜線 矢部駅 1900m 徒歩24分

    小学校校区

    中央小学校

    中学校校区

    中央中学校

  • 土地・建物情報

    土地面積

    118.69㎡(35.90坪)

    建物面積

    -

    私道面積

    -

    駐車場

    未選択

    建物構造

    -

    建物構造 主要

    その他

    建物構造 一部

    築年月

    -

    バルコニー

    -

    土地権利

    所有権

    都市計画

    市街化区域

    地目

    宅地

    地勢

    -

    建ぺい率

    60%

    容積率

    200%

    用途地域

    第一種住居地域

    現況

    -

    角地

    一方道路

    接道状況

    【前面道路①】 南西 道路幅:6m

    引渡し

    相談

    引渡し条件

    -

    リフォーム 外装

    リフォーム 内装

    上水道

    公営水道

    下水道

    本下水

    ガス・オール電化

    都市ガス

    セットバック

    不要

    私道負担

    地役権

    備考

    ■現況/更地
    ■図面と現況が異なる場合は現況優先とします。

    ※この土地は、土地売買契約後3ヵ月以内に当社と建物の建築請負契約を締結することを条件に販売します。
    この期間内に建築請負契約を締結されなかった場合は、土地売買契約は白紙となり、受領した手付金等の土地代金は全てお返しします。

    セールスポイント

    -

    取引態様

    売主

    建築確認番号

    -

  • 価格

    価格

    3,060万円

    価格補足

    -

    最多価格帯

    -

    保証金

    保証金

    その他諸費用

    -

    月々支払

    価格未定

    月々支払備考

    -

  • 特徴・設備

    設備

    都市ガス・上水道・下水道

    特徴

    日当り良好

    物件の性能

    -

    建物検査
    (インスペクション)

    -

    住宅履歴

    -

    立地・土地特徴

    南側道路面す・閑静な住宅地・前道6m以上・区画整理地内

    駅利便性

    2沿線以上利用可 

    住戸・階数

    -

    陽当り・採光・通風

    陽当り良好

    間取り

    -

    室内設備・仕様

    -

    収納

    -

    キッチン・関連設備

    -

    浴室

    -

    トイレ・洗面関連設備

    -

    バルコニー・テラス

    -

    -

    エコ関連

    -

    テレビ・通信

    -

    駐車・駐輪

    -

    管理・セキュリティ

    -

    リフォーム
    リノベーション

    -

    周辺環境

    スーパー 徒歩10分以内・総合病院 徒歩10分以内・小学校 徒歩10分以内

    眺望・自然環境

    -

    費用・引き渡し条件

    -

    その他

    -

  • 制限事項

    法令上の制限

    準防火地域

    その他制限事項

    -

情報更新日:2026年2月9日 / 次回情報更新日:2026年2月23日

この物件に関するお問い合わせはこちら

物件のお問い合わせはこちら

0120-343-650

【受付時間】9:00~18:00(水曜定休)

閉じる

閉じる
×