CONCEPT

コンセプト

自然と暮らしやすさが調和する、全13区画の新街区

二宮町に誕生する、全13区画の分譲地。
土地は建築条件なしのため、お好きなハウスメーカー・工務店で理想の住まいを自由に計画できます。
約36〜42坪のゆとりある敷地で、暮らし方に合わせた住まいづくりが可能です。

周辺にはドラッグストアやクリニックなど、生活利便施設が徒歩圏内に揃い、日々の暮らしも快適。
JR東海道線「二宮」駅まで徒歩24分で、自転車やバスでのアクセスも可能です。

海と緑に包まれた穏やかな環境は、季節ごとに表情を変え、暮らしに豊かさと心地よさをもたらします。
自然を身近に感じながら、のびのびとした日々をお過ごしいただけます。

住まいづくりの選択肢として、
当社では以下のプランもご用意しています。

・TOMOLI SMART design
 設計士が考えたプランにお好みのカラーコーディネートを選べる
 価格や仕様が分かりやすい住まい。

・TOMOLI SELECT design
 間取りから自由に検討できる、
 素材や設計にこだわった注文住宅。


また、No.13には新築戸建の建売プランもご用意。
2階リビングは明るく開放的な空間となっており、
ルーフバルコニーでは自然を感じながらゆったりとした時間をお過ごしいただけます。
各階にウォークインクローゼットを設け、収納にも配慮した住まいです。


当物件は【先着順販売】です。ご興味のある方はお早めにご連絡ください。

■ 見学予約・資料請求はフォームから24時間受付中
■ お電話でのお問い合わせも承ります → 「0120-343-650」(通話料無料)
※当日のご見学にも対応可能です。

LOCATION&
ACCESS

ロケーション/アクセス

  • 山西小学校

    山西小学校(徒歩24分/1,900m)

  • 二宮西中学校

    二宮西中学校(徒歩18分/1,400m)

  • JR東海道本線「二宮」駅

    JR東海道本線「二宮」駅(徒歩24分/1,920m)

  • 西友二宮店

    西友二宮店(徒歩34分/2,700m)

  • 穏やかな波音が心地よい二宮海岸。 海辺の散歩や夕日の鑑賞など、日常の中でリラックスできる時間を楽しめます。

    穏やかな波音が心地よい二宮海岸。 海辺の散歩や夕日の鑑賞など、日常の中でリラックスできる時間を楽しめます。
    (徒歩2分/100m)

  • しまむらストアーたちばな店

    しまむらストアーたちばな店
    (徒歩15分/1,000m)

  • セブンイレブン二宮山西店

    セブンイレブン二宮山西店
    (徒歩5分/350m)

  • クリエイトSD二宮山西店

    クリエイトSD二宮山西店
    (徒歩6分/440m)

  • 二宮めぐみ幼稚園

    二宮めぐみ幼稚園
    (徒歩28分/2,000m)

LANDSCAPE&
PLAN

区画図/プラン

もっと見る

この物件に関するお問い合わせはこちら

物件のお問い合わせはこちら

0120-343-650

【受付時間】9:00~18:00(水曜定休)

【TOMOLI 中郡二宮町山西】物件・全体概要

  • 物件所在地

    神奈川県中郡二宮町山西397付近

  • 交通

    東海道線 二宮駅 1920m 徒歩24分

  • 総区画数

    全13区画 ※内、戸建分譲1区画

  • 販売区画数

    11区画

  • 土地面積

    120.47㎡(36.44坪)~135.33㎡(40.93坪)

  • 建物面積

    106.81㎡(32.31坪)

  • 価格

    2,590万円(税込)~4,590万円(税込)

  • 間取り

    3LDK

  • 建ぺい率

    60%

  • 容積率

    180%~200%

  • 小学校校区

    山西小学校

  • 中学校校区

    二宮西中学校

  • 上水道

    公営水道

  • 下水道

    本下水

  • 情報更新日

    2026年4月27日

  • 次回情報更新日

    2026年5月11日

【TOMOLI 中郡二宮町山西】No.1(SMART design対応)

土地面積:120.5㎡(36.45坪) 状況:分譲中

2,790 (税込) 万円

  • SMART design 外観完成イメージ

    SMART design 外観完成イメージ

    土地価格2,790万円+建物参考価格1,800万円=建物付き参考価格総額4,590万円(税込)
    ※建物は請負契約・契約後着工
    外観デザインやカラーは一例で、変更が可能です。

  • SMART design 間取り図

    SMART design 間取り図

    建物プラン / 建物面積:96.05㎡
    玄関ホールとキッチンの両方から出入りできる洗面室を設け、家事動線に配慮したプランです。
    ※本プランはSMARTdesignの標準プランです。

  • 現地写真

    現地写真

    建築条件のない土地でお好きなハウスメーカーで建築可能です。
    当社での建築をご検討の場合は、建物プランについてご相談いただけます。

  • 区画図

    区画図

GALLERY

ギャラリー

OVERVIEW

【No.1(SMART design対応)】区画概要

  • 基本情報

    種別

    土地

    種目

    売地

    物件ステータス

    分譲中

    公開

    一般公開

    販売スケジュール

    即日

    物件名

    No.1(SMART design対応)

    間取り

    -

    物件所在地

    神奈川県中郡二宮町山西397付近

    交通

    東海道線 二宮駅 1920m 徒歩24分

    小学校校区

    山西小学校

    中学校校区

    二宮西中学校

  • 土地・建物情報

    土地面積

    120.5㎡(36.45坪)

    建物面積

    -

    私道面積

    -

    駐車場

    未選択

    建物構造

    -

    建物構造 主要

    その他

    建物構造 一部

    築年月

    -

    バルコニー

    -

    土地権利

    所有権

    都市計画

    市街化区域

    地目

    宅地

    地勢

    -

    建ぺい率

    60%

    容積率

    200%

    用途地域

    第一種中高層住居専用地域

    現況

    造成完了

    角地

    角地

    接道状況

    【前面道路①】 北東 道路幅:6.8m
    【前面道路②】 南東 道路幅:4.5m

    引渡し

    相談

    引渡し条件

    -

    リフォーム 外装

    リフォーム 内装

    上水道

    公営水道

    下水道

    本下水

    ガス・オール電化

    個別LPG

    セットバック

    不要

    私道負担

    地役権

    備考

    ※当社建築請負契約の場合 フラット35S(金利タイプA)利用時 適合証明費用/96,800円(税込)
    ※土地分譲区画は建築確認申請が未取得のため、掲載プランと異なる場合がございます。あらかじめご了承ください。
    ※図面と現況が異なる場合は現況優先とします。

    ※SMARTdesignは当社がご提案する標準プランです。SMARTdesignのほか、建物プランを自由に設計することも可能です。
    掲載の建物はSMARTdesignに基づく完成イメージで、仕様・外壁カラー・外構等は一部変更となる場合があり、内容により追加工事費が発生する場合があります。

    セールスポイント

    -

    取引態様

    売主

    建築確認番号

    -

  • 価格

    価格

    2,790万円

    価格補足

    -

    最多価格帯

    -

    保証金

    未選択

    その他諸費用

    -

    月々支払

    価格未定

    月々支払備考

    -

  • 特徴・設備

    設備

    プロパンガス・上水道・下水道

    特徴

    日当り良好

    物件の性能

    -

    建物検査
    (インスペクション)

    -

    住宅履歴

    -

    立地・土地特徴

    南側道路面す・閑静な住宅地・前道6m以上・角地・整形地・開発分譲地内・区画整理地内

    駅利便性

    -

    住戸・階数

    -

    陽当り・採光・通風

    -

    間取り

    -

    室内設備・仕様

    -

    収納

    -

    キッチン・関連設備

    -

    浴室

    -

    トイレ・洗面関連設備

    -

    バルコニー・テラス

    -

    -

    エコ関連

    -

    テレビ・通信

    -

    駐車・駐輪

    -

    管理・セキュリティ

    -

    リフォーム
    リノベーション

    -

    周辺環境

    -

    眺望・自然環境

    海まで2km以内

    費用・引き渡し条件

    -

    その他

    -

  • 制限事項

    法令上の制限

    準防火地域

    その他制限事項

    -

情報更新日:2026年3月30日 / 次回情報更新日:2026年4月13日

【TOMOLI 中郡二宮町山西】No.2(SMART design対応)

土地面積:120.5㎡(36.45坪) 状況:分譲中

2,590 (税込) 万円

  • SMART design 外観完成イメージ

    SMART design 外観完成イメージ

    土地価格2,590万円+建物参考価格1,810万円=建物付き参考価格総額4,400万円(税込)
    ※建物は請負契約・契約後着工
    外観デザインやカラーは一例で、変更が可能です。

  • SMART design 間取り図

    SMART design 間取り図

    建物プラン / 建物面積:97.71㎡
    土間からホールへ通り抜けできるSCと、洗面室・脱衣室を分けた使い勝手の良いプラン。
    ※本プランはSMARTdesignの標準プランです。

  • 現地写真

    現地写真

    建築条件のない土地でお好きなハウスメーカーで建築可能です。
    当社での建築をご検討の場合は、建物プランについてご相談いただけます。

  • 区画図

    区画図

GALLERY

ギャラリー

OVERVIEW

【No.2(SMART design対応)】区画概要

  • 基本情報

    種別

    土地

    種目

    売地

    物件ステータス

    分譲中

    公開

    一般公開

    販売スケジュール

    即日

    物件名

    No.2(SMART design対応)

    間取り

    -

    物件所在地

    神奈川県中郡二宮町山西397付近

    交通

    東海道線 二宮駅 1920m 徒歩24分

    小学校校区

    山西小学校

    中学校校区

    二宮西中学校

  • 土地・建物情報

    土地面積

    120.5㎡(36.45坪)

    建物面積

    -

    私道面積

    -

    駐車場

    未選択

    建物構造

    -

    建物構造 主要

    その他

    建物構造 一部

    築年月

    -

    バルコニー

    -

    土地権利

    所有権

    都市計画

    市街化区域

    地目

    宅地

    地勢

    -

    建ぺい率

    60%

    容積率

    180%

    用途地域

    第一種中高層住居専用地域

    現況

    造成完了

    角地

    一方道路

    接道状況

    【前面道路①】 南 道路幅:4.5m

    引渡し

    相談

    引渡し条件

    -

    リフォーム 外装

    リフォーム 内装

    上水道

    公営水道

    下水道

    本下水

    ガス・オール電化

    個別LPG

    セットバック

    不要

    私道負担

    地役権

    備考

    ■容積率/前面道路幅員制限
    ※当社建築請負契約の場合 フラット35S(金利タイプA)利用時 適合証明費用/96,800円(税込)
    ※土地分譲区画は建築確認申請が未取得のため、掲載プランと異なる場合がございます。あらかじめご了承ください。
    ※図面と現況が異なる場合は現況優先とします。

    ※SMARTdesignは当社がご提案する標準プランです。SMARTdesignのほか、建物プランを自由に設計することも可能です。
    掲載の建物はSMARTdesignに基づく完成イメージで、仕様・外壁カラー・外構等は一部変更となる場合があり、内容により追加工事費が発生する場合があります。

    セールスポイント

    -

    取引態様

    売主

    建築確認番号

    -

  • 価格

    価格

    2,590万円

    価格補足

    -

    最多価格帯

    -

    保証金

    未選択

    その他諸費用

    -

    月々支払

    価格未定

    月々支払備考

    -

  • 特徴・設備

    設備

    プロパンガス・上水道・下水道

    特徴

    日当り良好

    物件の性能

    -

    建物検査
    (インスペクション)

    -

    住宅履歴

    -

    立地・土地特徴

    南側道路面す・閑静な住宅地・整形地・開発分譲地内・区画整理地内

    駅利便性

    -

    住戸・階数

    -

    陽当り・採光・通風

    -

    間取り

    -

    室内設備・仕様

    -

    収納

    -

    キッチン・関連設備

    -

    浴室

    -

    トイレ・洗面関連設備

    -

    バルコニー・テラス

    -

    -

    エコ関連

    -

    テレビ・通信

    -

    駐車・駐輪

    -

    管理・セキュリティ

    -

    リフォーム
    リノベーション

    -

    周辺環境

    -

    眺望・自然環境

    海まで2km以内

    費用・引き渡し条件

    -

    その他

    -

  • 制限事項

    法令上の制限

    準防火地域

    その他制限事項

    -

情報更新日:2026年3月30日 / 次回情報更新日:2026年4月13日

【TOMOLI 中郡二宮町山西】No.4(SMART design対応)

土地面積:120.52㎡(36.45坪) 状況:分譲中

2,590 (税込) 万円

  • SMART design 外観完成イメージ

    SMART design 外観完成イメージ

    土地価格2,590万円+建物参考価格1,820万円=建物付き参考価格総額4,410万円(税込)
    ※建物は請負契約・契約後着工
    外観デザインやカラーは一例で、変更が可能です。

  • SMART design 間取り図

    SMART design 間取り図

    建物プラン / 建物面積:97.71㎡
    20帖の広々としたLDKに、パントリーやWICを備えた収納充実のプラン。
    ※本プランはSMARTdesignの標準プランです。

  • 現地写真

    現地写真

    建築条件のない土地でお好きなハウスメーカーで建築可能です。
    当社での建築をご検討の場合は、建物プランについてご相談いただけます。

  • 区画図

    区画図

GALLERY

ギャラリー

OVERVIEW

【No.4(SMART design対応)】区画概要

  • 基本情報

    種別

    土地

    種目

    売地

    物件ステータス

    分譲中

    公開

    一般公開

    販売スケジュール

    即日

    物件名

    No.4(SMART design対応)

    間取り

    -

    物件所在地

    神奈川県中郡二宮町山西397付近

    交通

    東海道線 二宮駅 1920m 徒歩24分

    小学校校区

    山西小学校

    中学校校区

    二宮西中学校

  • 土地・建物情報

    土地面積

    120.52㎡(36.45坪)

    建物面積

    -

    私道面積

    -

    駐車場

    未選択

    建物構造

    -

    建物構造 主要

    その他

    建物構造 一部

    築年月

    -

    バルコニー

    -

    土地権利

    所有権

    都市計画

    市街化区域

    地目

    宅地

    地勢

    -

    建ぺい率

    60%

    容積率

    180%

    用途地域

    第一種中高層住居専用地域

    現況

    造成完了

    角地

    一方道路

    接道状況

    【前面道路①】 南 道路幅:4.5m

    引渡し

    相談

    引渡し条件

    -

    リフォーム 外装

    リフォーム 内装

    上水道

    公営水道

    下水道

    本下水

    ガス・オール電化

    個別LPG

    セットバック

    不要

    私道負担

    地役権

    備考

    ■容積率/前面道路幅員制限
    ※当社建築請負契約の場合 フラット35S(金利タイプA)利用時 適合証明費用/96,800円(税込)
    ※土地分譲区画は建築確認申請が未取得のため、掲載プランと異なる場合がございます。あらかじめご了承ください。
    ※図面と現況が異なる場合は現況優先とします。

    ※SMARTdesignは当社がご提案する標準プランです。SMARTdesignのほか、建物プランを自由に設計することも可能です。
    掲載の建物はSMARTdesignに基づく完成イメージで、仕様・外壁カラー・外構等は一部変更となる場合があり、内容により追加工事費が発生する場合があります。

    セールスポイント

    -

    取引態様

    売主

    建築確認番号

    -

  • 価格

    価格

    2,590万円

    価格補足

    -

    最多価格帯

    -

    保証金

    未選択

    その他諸費用

    -

    月々支払

    価格未定

    月々支払備考

    -

  • 特徴・設備

    設備

    プロパンガス・上水道・下水道

    特徴

    日当り良好

    物件の性能

    -

    建物検査
    (インスペクション)

    -

    住宅履歴

    -

    立地・土地特徴

    南側道路面す・閑静な住宅地・開発分譲地内・区画整理地内

    駅利便性

    -

    住戸・階数

    -

    陽当り・採光・通風

    -

    間取り

    -

    室内設備・仕様

    -

    収納

    -

    キッチン・関連設備

    -

    浴室

    -

    トイレ・洗面関連設備

    -

    バルコニー・テラス

    -

    -

    エコ関連

    -

    テレビ・通信

    -

    駐車・駐輪

    -

    管理・セキュリティ

    -

    リフォーム
    リノベーション

    -

    周辺環境

    -

    眺望・自然環境

    海まで2km以内

    費用・引き渡し条件

    -

    その他

    -

  • 制限事項

    法令上の制限

    準防火地域

    その他制限事項

    -

情報更新日:2026年3月30日 / 次回情報更新日:2026年4月13日

【TOMOLI 中郡二宮町山西】No.5(SMART design対応)

土地面積:127.97㎡(38.71坪) 状況:分譲中

2,590 (税込) 万円

  • SMART design 外観完成イメージ

    SMART design 外観完成イメージ

    土地価格2,590万円+建物参考価格1,810万円=建物付き参考価格総額4,400万円(税込)
    ※建物は請負契約・契約後着工
    外観デザインやカラーは一例で、変更が可能です。

  • SMART design 間取り図

    SMART design 間取り図

    建物プラン / 建物面積:97.71㎡
    LDKからパントリー、洗面室へとスムーズにつながる家事動線を備えたプラン。
    ※本プランはSMARTdesignの標準プランです。

  • 現地写真

    現地写真

    建築条件のない土地でお好きなハウスメーカーで建築可能です。
    当社での建築をご検討の場合は、建物プランについてご相談いただけます。

  • 区画図

    区画図

GALLERY

ギャラリー

OVERVIEW

【No.5(SMART design対応)】区画概要

  • 基本情報

    種別

    土地

    種目

    売地

    物件ステータス

    分譲中

    公開

    一般公開

    販売スケジュール

    即日

    物件名

    No.5(SMART design対応)

    間取り

    -

    物件所在地

    神奈川県中郡二宮町山西397付近

    交通

    東海道線 二宮駅 1920m 徒歩24分

    小学校校区

    山西小学校

    中学校校区

    二宮西中学校

  • 土地・建物情報

    土地面積

    127.97㎡(38.71坪)

    建物面積

    -

    私道面積

    -

    駐車場

    未選択

    建物構造

    -

    建物構造 主要

    その他

    建物構造 一部

    築年月

    -

    バルコニー

    -

    土地権利

    所有権

    都市計画

    市街化区域

    地目

    宅地

    地勢

    -

    建ぺい率

    60%

    容積率

    180%

    用途地域

    第一種中高層住居専用地域

    現況

    造成完了

    角地

    一方道路

    接道状況

    【前面道路①】 南東 道路幅:4.5m

    引渡し

    相談

    引渡し条件

    -

    リフォーム 外装

    リフォーム 内装

    上水道

    公営水道

    下水道

    本下水

    ガス・オール電化

    個別LPG

    セットバック

    不要

    私道負担

    地役権

    備考

    ■容積率/前面道路幅員制限
    ※当社建築請負契約の場合 フラット35S(金利タイプA)利用時 適合証明費用/96,800円(税込)
    ※土地分譲区画は建築確認申請が未取得のため、掲載プランと異なる場合がございます。あらかじめご了承ください。
    ※図面と現況が異なる場合は現況優先とします。

    ※SMARTdesignは当社がご提案する標準プランです。SMARTdesignのほか、建物プランを自由に設計することも可能です。
    掲載の建物はSMARTdesignに基づく完成イメージで、仕様・外壁カラー・外構等は一部変更となる場合があり、内容により追加工事費が発生する場合があります。

    セールスポイント

    -

    取引態様

    売主

    建築確認番号

    -

  • 価格

    価格

    2,590万円

    価格補足

    -

    最多価格帯

    -

    保証金

    未選択

    その他諸費用

    -

    月々支払

    価格未定

    月々支払備考

    -

  • 特徴・設備

    設備

    プロパンガス・上水道・下水道

    特徴

    日当り良好

    物件の性能

    -

    建物検査
    (インスペクション)

    -

    住宅履歴

    -

    立地・土地特徴

    南側道路面す・閑静な住宅地・開発分譲地内・区画整理地内

    駅利便性

    -

    住戸・階数

    -

    陽当り・採光・通風

    -

    間取り

    -

    室内設備・仕様

    -

    収納

    -

    キッチン・関連設備

    -

    浴室

    -

    トイレ・洗面関連設備

    -

    バルコニー・テラス

    -

    -

    エコ関連

    -

    テレビ・通信

    -

    駐車・駐輪

    -

    管理・セキュリティ

    -

    リフォーム
    リノベーション

    -

    周辺環境

    -

    眺望・自然環境

    海まで2km以内

    費用・引き渡し条件

    -

    その他

    -

  • 制限事項

    法令上の制限

    準防火地域

    その他制限事項

    -

情報更新日:2026年3月30日 / 次回情報更新日:2026年4月13日

【TOMOLI 中郡二宮町山西】No.6(SMART design対応)

土地面積:135.33㎡(40.93坪) 状況:分譲中

2,590 (税込) 万円

  • SMART design 外観完成イメージ

    SMART design 外観完成イメージ

    土地価格2,590万円+建物参考価格1,820万円=建物付き参考価格総額4,410万円(税込)
    ※建物は請負契約・契約後着工
    外観デザインやカラーは一例で、変更が可能です。

  • SMART design LDK完成イメージ

    SMART design LDK完成イメージ

    明るい光が差し込むLDKに、和室が隣接した心地よい空間。

  • SMART design 間取り図

    SMART design 間取り図

    建物プラン / 建物面積:98.95㎡
    4LDK+駐車2台可能のプラン。SCやWICなど豊富な収納を備えました。
    ※本プランはSMARTdesignの標準プランです。

  • 現地写真

    現地写真

    建築条件のない土地でお好きなハウスメーカーで建築可能です。
    当社での建築をご検討の場合は、建物プランについてご相談いただけます。

  • 区画図

    区画図

    ■接道/西面2.9m建築基準法外通路

GALLERY

ギャラリー

OVERVIEW

【No.6(SMART design対応)】区画概要

  • 基本情報

    種別

    土地

    種目

    売地

    物件ステータス

    分譲中

    公開

    一般公開

    販売スケジュール

    即日

    物件名

    No.6(SMART design対応)

    間取り

    -

    物件所在地

    神奈川県中郡二宮町山西397付近

    交通

    東海道線 二宮駅 1920m 徒歩24分

    小学校校区

    山西小学校

    中学校校区

    二宮西中学校

  • 土地・建物情報

    土地面積

    135.33㎡(40.93坪)

    建物面積

    -

    私道面積

    -

    駐車場

    未選択

    建物構造

    -

    建物構造 主要

    その他

    建物構造 一部

    築年月

    -

    バルコニー

    -

    土地権利

    所有権

    都市計画

    市街化区域

    地目

    宅地

    地勢

    -

    建ぺい率

    60%

    容積率

    180%

    用途地域

    第一種中高層住居専用地域

    現況

    造成完了

    角地

    角地

    接道状況

    【前面道路①】 南 道路幅:4.5m
    【前面道路②】 西 道路幅:2.9m

    引渡し

    相談

    引渡し条件

    -

    リフォーム 外装

    リフォーム 内装

    上水道

    公営水道

    下水道

    本下水

    ガス・オール電化

    個別LPG

    セットバック

    私道負担

    地役権

    備考

    ■容積率/前面道路幅員制限
    ※当社建築請負契約の場合 フラット35S(金利タイプA)利用時 適合証明費用/96,800円(税込)
    ※土地分譲区画は建築確認申請が未取得のため、掲載プランと異なる場合がございます。あらかじめご了承ください。
    ※図面と現況が異なる場合は現況優先とします。

    ※SMARTdesignは当社がご提案する標準プランです。SMARTdesignのほか、建物プランを自由に設計することも可能です。
    掲載の建物はSMARTdesignに基づく完成イメージで、仕様・外壁カラー・外構等は一部変更となる場合があり、内容により追加工事費が発生する場合があります。

    セールスポイント

    -

    取引態様

    売主

    建築確認番号

    -

  • 価格

    価格

    2,590万円

    価格補足

    -

    最多価格帯

    -

    保証金

    未選択

    その他諸費用

    -

    月々支払

    価格未定

    月々支払備考

    -

  • 特徴・設備

    設備

    プロパンガス・上水道・下水道

    特徴

    日当り良好

    物件の性能

    -

    建物検査
    (インスペクション)

    -

    住宅履歴

    -

    立地・土地特徴

    南側道路面す・閑静な住宅地・角地・開発分譲地内・区画整理地内

    駅利便性

    -

    住戸・階数

    -

    陽当り・採光・通風

    -

    間取り

    -

    室内設備・仕様

    -

    収納

    -

    キッチン・関連設備

    -

    浴室

    -

    トイレ・洗面関連設備

    -

    バルコニー・テラス

    -

    -

    エコ関連

    -

    テレビ・通信

    -

    駐車・駐輪

    -

    管理・セキュリティ

    -

    リフォーム
    リノベーション

    -

    周辺環境

    -

    眺望・自然環境

    海まで2km以内

    費用・引き渡し条件

    -

    その他

    -

  • 制限事項

    法令上の制限

    準防火地域

    その他制限事項

    -

情報更新日:2026年3月26日 / 次回情報更新日:2026年4月9日

【TOMOLI 中郡二宮町山西】No.8(SMART design対応)

土地面積:120.47㎡(36.44坪) 状況:分譲中

2,690 (税込) 万円

  • SMART design 外観完成イメージ

    SMART design 外観完成イメージ

    土地価格2,690万円+建物参考価格1,800万円=建物付き参考価格総額4,490万円(税込)
    ※建物は請負契約・契約後着工
    外観デザインやカラーは一例で、変更が可能です。

  • SMART design 間取り図

    SMART design 間取り図

    建物プラン / 建物面積:96.88㎡
    SCと納戸を備え、たっぷり収納できるプラン。洗面室へは廊下とキッチンの2方向からアクセス可能です。
    ※本プランはSMARTdesignの標準プランです。

  • 現地写真

    現地写真

    建築条件のない土地でお好きなハウスメーカーで建築可能です。
    当社での建築をご検討の場合は、建物プランについてご相談いただけます。

  • 区画図

    区画図

GALLERY

ギャラリー

OVERVIEW

【No.8(SMART design対応)】区画概要

  • 基本情報

    種別

    土地

    種目

    売地

    物件ステータス

    分譲中

    公開

    一般公開

    販売スケジュール

    即日

    物件名

    No.8(SMART design対応)

    間取り

    -

    物件所在地

    神奈川県中郡二宮町山西397付近

    交通

    東海道線 二宮駅 1920m 徒歩24分

    小学校校区

    山西小学校

    中学校校区

    二宮西中学校

  • 土地・建物情報

    土地面積

    120.47㎡(36.44坪)

    建物面積

    -

    私道面積

    -

    駐車場

    未選択

    建物構造

    -

    建物構造 主要

    その他

    建物構造 一部

    築年月

    -

    バルコニー

    -

    土地権利

    所有権

    都市計画

    市街化区域

    地目

    宅地

    地勢

    -

    建ぺい率

    60%

    容積率

    200%

    用途地域

    第一種中高層住居専用地域

    現況

    造成完了

    角地

    二方道路(除角地)

    接道状況

    【前面道路①】 北 道路幅:4.5m
    【前面道路②】 南 道路幅:4.5m

    引渡し

    相談

    引渡し条件

    -

    リフォーム 外装

    リフォーム 内装

    上水道

    公営水道

    下水道

    本下水

    ガス・オール電化

    個別LPG

    セットバック

    私道負担

    地役権

    備考

    ※当社建築請負契約の場合 フラット35S(金利タイプA)利用時 適合証明費用/96,800円(税込)
    ※土地分譲区画は建築確認申請が未取得のため、掲載プランと異なる場合がございます。あらかじめご了承ください。
    ※図面と現況が異なる場合は現況優先とします。

    ※SMARTdesignは当社がご提案する標準プランです。SMARTdesignのほか、建物プランを自由に設計することも可能です。
    掲載の建物はSMARTdesignに基づく完成イメージで、仕様・外壁カラー・外構等は一部変更となる場合があり、内容により追加工事費が発生する場合があります。

    セールスポイント

    -

    取引態様

    売主

    建築確認番号

    -

  • 価格

    価格

    2,690万円

    価格補足

    -

    最多価格帯

    -

    保証金

    未選択

    その他諸費用

    -

    月々支払

    価格未定

    月々支払備考

    -

  • 特徴・設備

    設備

    プロパンガス・上水道・下水道

    特徴

    日当り良好

    物件の性能

    -

    建物検査
    (インスペクション)

    -

    住宅履歴

    -

    立地・土地特徴

    南側道路面す・閑静な住宅地・整形地・開発分譲地内・区画整理地内

    駅利便性

    -

    住戸・階数

    -

    陽当り・採光・通風

    -

    間取り

    -

    室内設備・仕様

    -

    収納

    -

    キッチン・関連設備

    -

    浴室

    -

    トイレ・洗面関連設備

    -

    バルコニー・テラス

    -

    -

    エコ関連

    -

    テレビ・通信

    -

    駐車・駐輪

    -

    管理・セキュリティ

    -

    リフォーム
    リノベーション

    -

    周辺環境

    -

    眺望・自然環境

    海まで2km以内

    費用・引き渡し条件

    -

    その他

    -

  • 制限事項

    法令上の制限

    準防火地域

    その他制限事項

    -

情報更新日:2026年3月30日 / 次回情報更新日:2026年4月13日

【TOMOLI 中郡二宮町山西】No.9(SMART design対応)

土地面積:120.47㎡(36.44坪) 状況:分譲中

2,690 (税込) 万円

  • SMART design 外観完成イメージ

    SMART design 外観完成イメージ

    土地価格2,690万円+建物参考価格1,790万円=建物付き参考価格総額4,480万円(税込)
    ※建物は請負契約・契約後着工
    外観デザインやカラーは一例で、変更が可能です。

  • SMART design 間取り図

    SMART design 間取り図

    建物プラン / 建物面積:95.23㎡
    玄関上部が吹き抜けとなった開放感のあるプラン。LDKに隣接した和室を備え、使い勝手にも配慮しています。
    ※本プランはSMARTdesignの標準プランです。

  • 現地写真

    現地写真

    建築条件のない土地でお好きなハウスメーカーで建築可能です。
    当社での建築をご検討の場合は、建物プランについてご相談いただけます。

  • 区画図

    区画図

GALLERY

ギャラリー

OVERVIEW

【No.9(SMART design対応)】区画概要

  • 基本情報

    種別

    土地

    種目

    売地

    物件ステータス

    分譲中

    公開

    一般公開

    販売スケジュール

    即日

    物件名

    No.9(SMART design対応)

    間取り

    -

    物件所在地

    神奈川県中郡二宮町山西397付近

    交通

    東海道線 二宮駅 1920m 徒歩24分

    小学校校区

    山西小学校

    中学校校区

    二宮西中学校

  • 土地・建物情報

    土地面積

    120.47㎡(36.44坪)

    建物面積

    -

    私道面積

    -

    駐車場

    未選択

    建物構造

    -

    建物構造 主要

    その他

    建物構造 一部

    築年月

    -

    バルコニー

    -

    土地権利

    所有権

    都市計画

    市街化区域

    地目

    宅地

    地勢

    -

    建ぺい率

    60%

    容積率

    200%

    用途地域

    第一種中高層住居専用地域

    現況

    造成完了

    角地

    二方道路(除角地)

    接道状況

    【前面道路①】 北 道路幅:4.5m
    【前面道路②】 南 道路幅:4.5m

    引渡し

    相談

    引渡し条件

    -

    リフォーム 外装

    リフォーム 内装

    上水道

    公営水道

    下水道

    本下水

    ガス・オール電化

    個別LPG

    セットバック

    私道負担

    地役権

    備考

    ※当社建築請負契約の場合 フラット35S(金利タイプA)利用時 適合証明費用/96,800円(税込)
    ※土地分譲区画は建築確認申請が未取得のため、掲載プランと異なる場合がございます。あらかじめご了承ください。
    ※図面と現況が異なる場合は現況優先とします。

    ※SMARTdesignは当社がご提案する標準プランです。SMARTdesignのほか、建物プランを自由に設計することも可能です。
    掲載の建物はSMARTdesignに基づく完成イメージで、仕様・外壁カラー・外構等は一部変更となる場合があり、内容により追加工事費が発生する場合があります。

    セールスポイント

    -

    取引態様

    売主

    建築確認番号

    -

  • 価格

    価格

    2,690万円

    価格補足

    -

    最多価格帯

    -

    保証金

    未選択

    その他諸費用

    -

    月々支払

    価格未定

    月々支払備考

    -

  • 特徴・設備

    設備

    プロパンガス・上水道・下水道

    特徴

    日当り良好

    物件の性能

    -

    建物検査
    (インスペクション)

    -

    住宅履歴

    -

    立地・土地特徴

    南側道路面す・閑静な住宅地・整形地・開発分譲地内・区画整理地内

    駅利便性

    -

    住戸・階数

    -

    陽当り・採光・通風

    -

    間取り

    -

    室内設備・仕様

    -

    収納

    -

    キッチン・関連設備

    -

    浴室

    -

    トイレ・洗面関連設備

    -

    バルコニー・テラス

    -

    -

    エコ関連

    -

    テレビ・通信

    -

    駐車・駐輪

    -

    管理・セキュリティ

    -

    リフォーム
    リノベーション

    -

    周辺環境

    -

    眺望・自然環境

    海まで2km以内

    費用・引き渡し条件

    -

    その他

    -

  • 制限事項

    法令上の制限

    準防火地域

    その他制限事項

    -

情報更新日:2026年3月30日 / 次回情報更新日:2026年4月13日

【TOMOLI 中郡二宮町山西】No.10(SMART design対応)

土地面積:120.48㎡(36.44坪) 状況:分譲中

2,690 (税込) 万円

  • SMART design 外観完成イメージ

    SMART design 外観完成イメージ

    土地価格2,690万円+建物参考価格1,820万円=建物付き参考価格総額4,510万円(税込)
    ※建物は請負契約・契約後着工
    外観デザインやカラーは一例で、変更が可能です。

  • SMART design 間取り図

    SMART design 間取り図

    建物プラン / 建物面積:98.54㎡
    玄関からパントリーを通ってキッチンへつながる、効率的な家事動線を備えたプラン。
    ※本プランはSMARTdesignの標準プランです。

  • 現地写真

    現地写真

    建築条件のない土地でお好きなハウスメーカーで建築可能です。
    当社での建築をご検討の場合は、建物プランについてご相談いただけます。

  • 区画図

    区画図

GALLERY

ギャラリー

OVERVIEW

【No.10(SMART design対応)】区画概要

  • 基本情報

    種別

    土地

    種目

    売地

    物件ステータス

    分譲中

    公開

    一般公開

    販売スケジュール

    即日

    物件名

    No.10(SMART design対応)

    間取り

    -

    物件所在地

    神奈川県中郡二宮町山西397付近

    交通

    東海道線 二宮駅 1920m 徒歩24分

    小学校校区

    山西小学校

    中学校校区

    二宮西中学校

  • 土地・建物情報

    土地面積

    120.48㎡(36.44坪)

    建物面積

    -

    私道面積

    -

    駐車場

    未選択

    建物構造

    -

    建物構造 主要

    その他

    建物構造 一部

    築年月

    -

    バルコニー

    -

    土地権利

    所有権

    都市計画

    市街化区域

    地目

    宅地

    地勢

    -

    建ぺい率

    60%

    容積率

    200%

    用途地域

    第一種中高層住居専用地域

    現況

    造成完了

    角地

    二方道路(除角地)

    接道状況

    【前面道路①】 北 道路幅:4.5m
    【前面道路②】 南 道路幅:4.5m

    引渡し

    相談

    引渡し条件

    -

    リフォーム 外装

    リフォーム 内装

    上水道

    公営水道

    下水道

    本下水

    ガス・オール電化

    個別LPG

    セットバック

    私道負担

    地役権

    備考

    ※当社建築請負契約の場合 フラット35S(金利タイプA)利用時 適合証明費用/96,800円(税込)
    ※土地分譲区画は建築確認申請が未取得のため、掲載プランと異なる場合がございます。あらかじめご了承ください。
    ※図面と現況が異なる場合は現況優先とします。

    ※SMARTdesignは当社がご提案する標準プランです。SMARTdesignのほか、建物プランを自由に設計することも可能です。
    掲載の建物はSMARTdesignに基づく完成イメージで、仕様・外壁カラー・外構等は一部変更となる場合があり、内容により追加工事費が発生する場合があります。

    セールスポイント

    -

    取引態様

    売主

    建築確認番号

    -

  • 価格

    価格

    2,690万円

    価格補足

    -

    最多価格帯

    -

    保証金

    未選択

    その他諸費用

    -

    月々支払

    価格未定

    月々支払備考

    -

  • 特徴・設備

    設備

    プロパンガス・上水道・下水道

    特徴

    日当り良好

    物件の性能

    -

    建物検査
    (インスペクション)

    -

    住宅履歴

    -

    立地・土地特徴

    南側道路面す・閑静な住宅地・整形地・開発分譲地内・区画整理地内

    駅利便性

    -

    住戸・階数

    -

    陽当り・採光・通風

    -

    間取り

    -

    室内設備・仕様

    -

    収納

    -

    キッチン・関連設備

    -

    浴室

    -

    トイレ・洗面関連設備

    -

    バルコニー・テラス

    -

    -

    エコ関連

    -

    テレビ・通信

    -

    駐車・駐輪

    -

    管理・セキュリティ

    -

    リフォーム
    リノベーション

    -

    周辺環境

    -

    眺望・自然環境

    海まで2km以内

    費用・引き渡し条件

    -

    その他

    -

  • 制限事項

    法令上の制限

    準防火地域

    その他制限事項

    -

情報更新日:2026年3月30日 / 次回情報更新日:2026年4月13日

【TOMOLI 中郡二宮町山西】No.11(SMART design対応)

土地面積:120.48㎡(36.44坪) 状況:分譲中

2,690 (税込) 万円

  • SMART design 外観完成イメージ

    SMART design 外観完成イメージ

    土地価格2,690万円+建物参考価格1,820万円=建物付き参考価格総額4,510万円(税込)
    ※建物は請負契約・契約後着工
    外観デザインやカラーは一例で、変更が可能です。

  • SMART design 間取り図

    SMART design 間取り図

    建物プラン / 建物面積:98.54㎡
    1階洗面室にFCLを隣接し、脱衣室と分けた使い勝手の良いプラン。
    ※本プランはSMARTdesignの標準プランです。

  • 現地写真

    現地写真

    建築条件のない土地でお好きなハウスメーカーで建築可能です。
    当社での建築をご検討の場合は、建物プランについてご相談いただけます。

  • 区画図

    区画図

GALLERY

ギャラリー

OVERVIEW

【No.11(SMART design対応)】区画概要

  • 基本情報

    種別

    土地

    種目

    売地

    物件ステータス

    分譲中

    公開

    一般公開

    販売スケジュール

    即日

    物件名

    No.11(SMART design対応)

    間取り

    -

    物件所在地

    神奈川県中郡二宮町山西397付近

    交通

    東海道線 二宮駅 1920m 徒歩24分

    小学校校区

    山西小学校

    中学校校区

    二宮西中学校

  • 土地・建物情報

    土地面積

    120.48㎡(36.44坪)

    建物面積

    -

    私道面積

    -

    駐車場

    未選択

    建物構造

    -

    建物構造 主要

    その他

    建物構造 一部

    築年月

    -

    バルコニー

    -

    土地権利

    所有権

    都市計画

    市街化区域

    地目

    宅地

    地勢

    -

    建ぺい率

    60%

    容積率

    200%

    用途地域

    第一種中高層住居専用地域

    現況

    造成完了

    角地

    二方道路(除角地)

    接道状況

    【前面道路①】 北 道路幅:4.5m
    【前面道路②】 南 道路幅:4.5m

    引渡し

    相談

    引渡し条件

    -

    リフォーム 外装

    リフォーム 内装

    上水道

    公営水道

    下水道

    本下水

    ガス・オール電化

    個別LPG

    セットバック

    私道負担

    地役権

    備考

    ※当社建築請負契約の場合 フラット35S(金利タイプA)利用時 適合証明費用/96,800円(税込)
    ※土地分譲区画は建築確認申請が未取得のため、掲載プランと異なる場合がございます。あらかじめご了承ください。
    ※図面と現況が異なる場合は現況優先とします。

    ※SMARTdesignは当社がご提案する標準プランです。SMARTdesignのほか、建物プランを自由に設計することも可能です。
    掲載の建物はSMARTdesignに基づく完成イメージで、仕様・外壁カラー・外構等は一部変更となる場合があり、内容により追加工事費が発生する場合があります。

    セールスポイント

    -

    取引態様

    売主

    建築確認番号

    -

  • 価格

    価格

    2,690万円

    価格補足

    -

    最多価格帯

    -

    保証金

    未選択

    その他諸費用

    -

    月々支払

    価格未定

    月々支払備考

    -

  • 特徴・設備

    設備

    プロパンガス・上水道・下水道

    特徴

    日当り良好

    物件の性能

    -

    建物検査
    (インスペクション)

    -

    住宅履歴

    -

    立地・土地特徴

    南側道路面す・閑静な住宅地・整形地・開発分譲地内・区画整理地内

    駅利便性

    -

    住戸・階数

    -

    陽当り・採光・通風

    -

    間取り

    -

    室内設備・仕様

    -

    収納

    -

    キッチン・関連設備

    -

    浴室

    -

    トイレ・洗面関連設備

    -

    バルコニー・テラス

    -

    -

    エコ関連

    -

    テレビ・通信

    -

    駐車・駐輪

    -

    管理・セキュリティ

    -

    リフォーム
    リノベーション

    -

    周辺環境

    -

    眺望・自然環境

    海まで2km以内

    費用・引き渡し条件

    -

    その他

    -

  • 制限事項

    法令上の制限

    準防火地域

    その他制限事項

    -

情報更新日:2026年3月30日 / 次回情報更新日:2026年4月13日

【TOMOLI 中郡二宮町山西】No.12(SMART design対応)

土地面積:120.5㎡(36.45坪) 状況:分譲中

2,690 (税込) 万円

  • SMART design 外観完成イメージ

    SMART design 外観完成イメージ

    土地価格2,690万円+建物参考価格1,820万円=建物付き参考価格総額4,510万円(税込)
    ※建物は請負契約・契約後着工
    外観デザインやカラーは一例で、変更が可能です。

  • SMART design 間取り図

    SMART design 間取り図

    建物プラン / 建物面積:98.12㎡
    玄関からSC・パントリーを通りキッチンへつながる家事動線に配慮したプラン。2階には広々としたWICを設置。
    ※本プランはSMARTdesignの標準プランです。

  • 現地写真

    現地写真

    建築条件のない土地でお好きなハウスメーカーで建築可能です。
    当社での建築をご検討の場合は、建物プランについてご相談いただけます。

  • 区画図

    区画図

GALLERY

ギャラリー

OVERVIEW

【No.12(SMART design対応)】区画概要

  • 基本情報

    種別

    土地

    種目

    売地

    物件ステータス

    分譲中

    公開

    一般公開

    販売スケジュール

    即日

    物件名

    No.12(SMART design対応)

    間取り

    -

    物件所在地

    神奈川県中郡二宮町山西397付近

    交通

    東海道線 二宮駅 1920m 徒歩24分

    小学校校区

    山西小学校

    中学校校区

    二宮西中学校

  • 土地・建物情報

    土地面積

    120.5㎡(36.45坪)

    建物面積

    -

    私道面積

    -

    駐車場

    未選択

    建物構造

    -

    建物構造 主要

    その他

    建物構造 一部

    築年月

    -

    バルコニー

    -

    土地権利

    所有権

    都市計画

    市街化区域

    地目

    宅地

    地勢

    -

    建ぺい率

    60%

    容積率

    200%

    用途地域

    第一種中高層住居専用地域

    現況

    造成完了

    角地

    二方道路(除角地)

    接道状況

    【前面道路①】 北 道路幅:4.5m
    【前面道路②】 南 道路幅:4.5m

    引渡し

    相談

    引渡し条件

    -

    リフォーム 外装

    リフォーム 内装

    上水道

    公営水道

    下水道

    本下水

    ガス・オール電化

    個別LPG

    セットバック

    私道負担

    地役権

    備考

    ※当社建築請負契約の場合 フラット35S(金利タイプA)利用時 適合証明費用/96,800円(税込)
    ※土地分譲区画は建築確認申請が未取得のため、掲載プランと異なる場合がございます。あらかじめご了承ください。
    ※図面と現況が異なる場合は現況優先とします。

    ※SMARTdesignは当社がご提案する標準プランです。SMARTdesignのほか、建物プランを自由に設計することも可能です。
    掲載の建物はSMARTdesignに基づく完成イメージで、仕様・外壁カラー・外構等は一部変更となる場合があり、内容により追加工事費が発生する場合があります。

    セールスポイント

    -

    取引態様

    売主

    建築確認番号

    -

  • 価格

    価格

    2,690万円

    価格補足

    -

    最多価格帯

    -

    保証金

    未選択

    その他諸費用

    -

    月々支払

    価格未定

    月々支払備考

    -

  • 特徴・設備

    設備

    プロパンガス・上水道・下水道

    特徴

    日当り良好

    物件の性能

    -

    建物検査
    (インスペクション)

    -

    住宅履歴

    -

    立地・土地特徴

    南側道路面す・閑静な住宅地・整形地・開発分譲地内・区画整理地内

    駅利便性

    -

    住戸・階数

    -

    陽当り・採光・通風

    -

    間取り

    -

    室内設備・仕様

    -

    収納

    -

    キッチン・関連設備

    -

    浴室

    -

    トイレ・洗面関連設備

    -

    バルコニー・テラス

    -

    -

    エコ関連

    -

    テレビ・通信

    -

    駐車・駐輪

    -

    管理・セキュリティ

    -

    リフォーム
    リノベーション

    -

    周辺環境

    -

    眺望・自然環境

    海まで2km以内

    費用・引き渡し条件

    -

    その他

    -

  • 制限事項

    法令上の制限

    準防火地域

    その他制限事項

    -

情報更新日:2026年3月30日 / 次回情報更新日:2026年4月13日

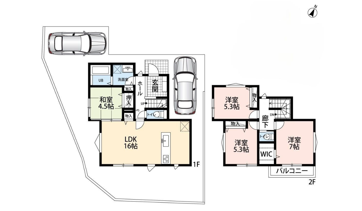
【TOMOLI 中郡二宮町山西】No.13

土地面積:120.59㎡(36.47坪) 建物面積:106.81㎡(32.31坪) 状況:分譲中

4,590 (税込) 万円

  • 外観完成予想図

    外観完成予想図

    白を基調とした、シンプルで洗練された外観。海に近い街並みにもなじむ、やさしい印象の住まいです。

  • 間取り図

    間取り図

    2階リビングで明るく開放的な空間に、ルーフバルコニーを備えた住まい。
    各階にウォークインクローゼットを設けた、収納充実のプランです。

  • 省エネ性能ラベル

    省エネ性能ラベル

    断熱性能等級5・エネルギー消費性能★3取得!
    ZEH水準クリアの省エネ住宅で、夏も冬も快適に過ごせます。

  • 現地写真

    現地写真

  • 区画図

    区画図

OVERVIEW

【No.13】区画概要

  • 基本情報

    種別

    一戸建て

    種目

    新築一戸建住宅

    物件ステータス

    分譲中

    公開

    一般公開

    販売スケジュール

    即日

    物件名

    No.13

    間取り

    3LDK

    物件所在地

    神奈川県中郡二宮町山西397付近

    交通

    東海道線 二宮駅 1920m 徒歩24分

    小学校校区

    山西小学校

    中学校校区

    二宮西中学校

  • 土地・建物情報

    土地面積

    120.59㎡(36.47坪)

    建物面積

    106.81㎡(32.31坪)

    私道面積

    -

    駐車場

    カースペース

    建物構造

    地上2階建て

    建物構造 主要

    木造

    建物構造 一部

    築年月

    西暦2026年 8月

    バルコニー

    -

    土地権利

    所有権

    都市計画

    市街化区域

    地目

    宅地

    地勢

    -

    建ぺい率

    60%

    容積率

    200%

    用途地域

    第一種中高層住居専用地域

    現況

    未完成

    角地

    三方道路

    接道状況

    【前面道路①】 北 道路幅:4.5m
    【前面道路②】 南 道路幅:4.5m
    【前面道路③】 東 道路幅:6.8m

    引渡し

    2026年 9月 中旬

    引渡し条件

    -

    リフォーム 外装

    リフォーム 内装

    上水道

    公営水道

    下水道

    本下水

    ガス・オール電化

    個別LPG

    セットバック

    私道負担

    地役権

    備考

    ※フラット35S(金利タイプA)利用時 適合証明費用/96,800円(税込)
    ※図面と現況が異なる場合は現況優先とします
    ※パース画像は実際とは異なる場合がございます。家具はイメージです。
    ※駐車台数は車種によります。

    セールスポイント

    -

    取引態様

    売主

    建築確認番号

    第KBI-SGM26-10-0371号(令和8年3月12日)

  • 価格

    価格

    4,590万円

    価格補足

    -

    最多価格帯

    -

    保証金

    未選択

    その他諸費用

    -

    月々支払

    価格未定

    月々支払備考

    -

  • 特徴・設備

    設備

    温水洗浄便座・トイレ2ヶ所・追焚機能・浴室乾燥機・システムキッチン・食器洗浄乾燥機・ウォークインクローゼット・床下収納・洗髪洗面化粧台・照明器具・電気・プロパンガス・上水道・下水道・複層ガラス・モニタ付インターホン・ルーフバルコニー・駐車場2台分

    特徴

    日当り良好

    物件の性能

    長期優良住宅認定通知書

    建物検査
    (インスペクション)

    -

    住宅履歴

    -

    立地・土地特徴

    地盤調査済・南側道路面す・閑静な住宅地・前道6m以上・角地・開発分譲地内・区画整理地内

    駅利便性

    -

    住戸・階数

    2階建

    陽当り・採光・通風

    南向き・陽当り良好・東南向き・全室2面採光

    間取り

    LDK18畳以上

    室内設備・仕様

    全居室フローリング

    収納

    全居室収納・床下収納・ウォークインクローゼット

    キッチン・関連設備

    システムキッチン・食器洗乾燥機

    浴室

    浴室乾燥機・浴室1坪以上

    トイレ・洗面関連設備

    シャワー付洗面化粧台・トイレ2ヶ所・温水洗浄便座・節水型トイレ・高機能トイレ

    バルコニー・テラス

    ルーフバルコニー ・バルコニー・屋上に水栓あり

    -

    エコ関連

    高気密高断熱住宅・省エネ給湯器・複層ガラス・全居室複層ガラスか複層サッシ

    テレビ・通信

    -

    駐車・駐輪

    駐車2台可

    管理・セキュリティ

    TVモニタ付インターホン

    リフォーム
    リノベーション

    -

    周辺環境

    -

    眺望・自然環境

    海まで2km以内

    費用・引き渡し条件

    -

    その他

    屋上

  • 制限事項

    法令上の制限

    準防火地域

    その他制限事項

    -

情報更新日:2026年3月24日 / 次回情報更新日:2026年4月7日

この物件に関するお問い合わせはこちら

物件のお問い合わせはこちら

0120-343-650

【受付時間】9:00~18:00(水曜定休)

閉じる

閉じる
×